Сдается офис вп, 163 кв.м., 1/9 эт
| Арендная плата (Долгосрочная) | 353 167 |
|---|---|
| Цена кв.м. в год | 26 000 |
| Площадь, кв.м. | 163 |
| Юридический адрес | предоставляется |
| НДС | НДС включен |
| Включено в ставку | Коммунальные услуги |
| Коммунальные услуги включены | Да |
| Безопасность | Круглосуточный пункт охраны |
| Населенный пункт | Москва |
|---|---|
| Улица | улица Шаболовка |
| Номер дома | 31 |
Лот 968
В БЦ «Шаболовка-31» расположенный по адресу: улица Шаболовка, дом 31. Предлагаются площади в строении «Г».
Рядом метро «Шаболовская», 5 мин. пешком. Имеется беспрепятственный доступ к зданию с основных магистралей ЦАО и ЮАО г. Москвы.
Прямая аренда от собственника.
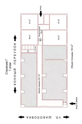
Помещение располагается в строении «Г», этаж 1, подъезд 1 общей S = 163,0 м² (4 комнаты площадью – 36, 37, 37, 53 кв. м.). Состояние помещений – помещения полностью готовы к въезду.
Наличие инженерных систем:
- Общая приточно-вытяжная вентиляция и кондиционирование воздуха.
Системы противопожарной сигнализации.
Энергоснабжения мощностью не менее 1 кВт 10 м² площади
Отопление
Водопровод и канализация
Возможность проведения Интернета и связи с любым провайдером.
Охрана круглосуточная с видеонаблюдением по периметру здания.
На территории БЦ располагается две столовых, два кафе, два ресторана, Нотариус.
Все необходимые документы на здание имеются
ВОЗМОЖНЫ КАНИКУЛЫ!!!!!

















