Сдается офис вп, 596.6 кв.м., 2/6 эт
Обзор№ - 921
| Арендная плата (Помесячно) | 596 600 |
|---|---|
| Цена кв.м. в год | 12 000 |
| Площадь, кв.м. | 596.6 |
| Юридический адрес | предоставляется |
| НДС | НДС включен |
| Включено в ставку | Эксплуатационные расходы |
| Обеспечительный платеж | 1 месяц |
| Коммунальные услуги включены | Нет |
Адрес
| Населенный пункт | Москва |
|---|---|
| Район города | Даниловский |
| Улица | набережная Павелецкая |
| Номер дома | 8 |
Лот 921
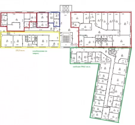
В аренду предлагается офисный блок, общей площадью 596.6 м.кв., расположен на втором этаже. Смешанная планировка , 15 кабинетов, санузел в блоке. Состояние помещения - за выездом арендатора. В здании проведены системы кондиционирования и приточно-вытяжной вентиляции. В пешей доступности (15 минут) от станции метро Тульская. Договор аренды напрямую с собственником. Без скрытых комиссий и платежей. На фото представлены варианты типовой отделки в данном бизнес-центре













