Сдается коммерческая, 96.8 кв.м., 13/75 эт
Обзор№ - 269
| Арендная плата (Помесячно) | 395 267 |
|---|---|
| Цена кв.м. в год | 49 000 |
| Включено в ставку | Операционные расходы |
| Вентиляция | Естественная |
| Тип коммерческой | Офисное помещение |
| НДС | НДС включен |
| Площадь, кв.м. | 96.8 |
| Этаж | 13 |
| Этажность | 75 |
| Класс здания | A |
Адрес
| Населенный пункт | Москва |
|---|---|
| Район города | Московский международный деловой центр Москва-Сити |
| Улица | набережная Пресненская |
| Номер дома | 8с1 |
ОФИС В АРЕНДУ
Преимущества:
- В офисе выполнен качественный ремонт класса А+;
- Панорамный вид;
- Доступ 24/7;
- Пропускная система в башне;
- Паркинг подземный и надземный.
Условия аренды:
- Договор аренды - от 11 месяцев;
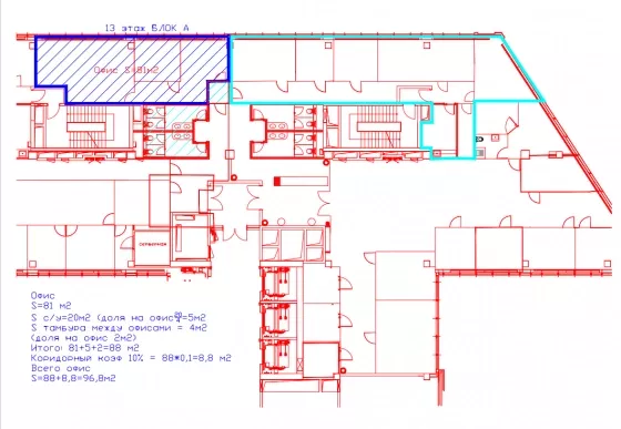
- Офис 96,8 кв м, (в т.ч. коридорный коэффициент 10%)
- В стоимость включены Эксплуатационные расходы и НДС;
- Коммунальные услуги - на основании индивидуальных приборов учета.
- НДС.
Башня Город Столиц:
- Подземное сообщение с торговым комплексом Афимолл, метро и остальными башнями ММДЦ Москва Сити;
- Ближайшие станции метро Деловой центр, Выставочная, и Международная находятся в нескольких минутах ходьбы.











