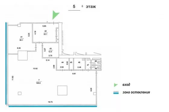
Продается офис бц, 300 кв.м., 5/75 эт
| Стоимость | 147 000 000 |
|---|---|
| Площадь, кв.м. | 300 |
| Класс здания | А+ |
| Этаж | 5 |
| Юридический адрес | предоставляется |
| НДС | УСН (упрощенная система налогообложения) |
| Включено в ставку | Эксплуатационные расходы |
| Кухня | Есть |
| Населенный пункт | Москва |
|---|---|
| Район города | Московский международный деловой центр Москва-Сити |
| Улица | набережная Пресненская |
| Номер дома | 8с1 |
ОФИС НАПРОДАЖУ
Планировка:
Зона ресепшн, переговорные, кабинеты руководителей, open space, кофе поинт, серверная, санузлы.
Отделка:
с отделкой, готово для въезда. Качество отделки: выполнена офисная отделка с высоким коэффициентом износоустойчивости. Внутриофисные перегородки из коленного стекла, коммерческий ковролин, потолок армстронг.
Арендаторы:
блок 200 м2 - срок аренды до 2023 г.
Возможность освобождения офиса предусмотрена.
Инженерные системы:
Современные инженерные системы, система приточно-вытяжной вентиляции и центрального кондиционирования, спринклерная система пожаротушения, сетевая разводка по точкам.
Безопасность:
круглосуточная охрана, пропускной режим, видеонаблюдение, охраняемая территория. Доступ в здание и помещение 24/7
Паркинг:
подземный МФК "Город Столиц" на 1530 м.мест.
Инфраструктура:
Развитая инфраструктура здания включающая се необходимое, столовая, различные кафе и рестораны, Старбакс, юридическая контора, клиника, салон оптики, аптека, фитнес-клуб World Class кофейни кафе, минимаркеты, банкоматы, отель и т.д.
Расположение:
здания характеризуется отличной транспортной доступностью как личным, так и общественным транспортом.
Башня Город Столиц:
- Подземное сообщение с торговым комплексом Афимолл, метро и остальными башнями ММДЦ Москва Сити;
- Ближайшие станции метро Деловой центр, Выставочная, и Международная находятся в нескольких минутах ходьбы.







































