Сдается офис бц, 2437 кв.м., 16/76 эт
Обзор№ - 1543
| Арендная плата (Помесячно) | 10 142 997 |
|---|---|
| Цена кв.м. в год | 49 945 |
| Площадь, кв.м. | 2437 |
| Класс здания | А+ |
| Этаж | 16 |
| Юридический адрес | предоставляется |
| НДС | УСН (упрощенная система налогообложения) |
| Включено в ставку | Эксплуатационные расходы |
| Обеспечительный платеж | 2 месяца |
| Коммунальные услуги включены | Да |
Адрес
| Населенный пункт | Москва |
|---|---|
| Район города | Пресненский |
| Улица | набережная Пресненская |
| Номер дома | 8с1 |
ОФИС В АРЕНДУ
Преимущества:
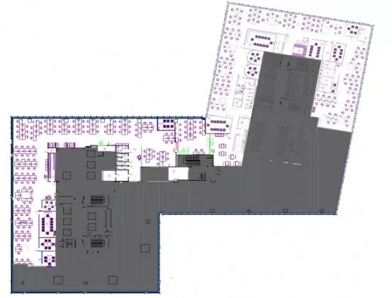
Количество мест - 236 полностью оборудованных рабочих мест
Состояние помещений - С высококачественной отделкой и мебелью
Планировка - смешанная
Коммерческие условия
Готовность к заезду - Февраль 2022 года
Срок аренды - 2 года
- Панорамный вид;
- Доступ 24/7;
- Пропускная система в башне и на этаже;
- Паркинг на 6000 машиномест.
Условия аренды:
- Договор аренды - от 2 лет;
- УСН.
Башня Город Столиц:
- Подземное сообщение с торговым комплексом Афимолл, метро и остальными башнями ММДЦ Москва Сити;
- Ближайшие станции метро Деловой центр, Выставочная, и Международная находятся в нескольких минутах ходьбы.









