Сдается офис вп, 1086.5 кв.м., 1/8 эт
Обзор№ - 1239
| Арендная плата (Помесячно) | 2 082 458 |
|---|---|
| Цена кв.м. в год | 23 000 |
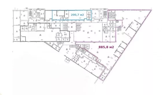
| Площадь, кв.м. | 1086.5 |
| НДС | НДС включен |
| Включено в ставку | Эксплуатационные расходы |
Адрес
| Населенный пункт | Москва |
|---|---|
| Улица | улица Новодмитровская |
| Номер дома | 5А |
Офисный блок в бизнес-центре класса В+, в шаговой доступности от м. Дмитровская. Смешанная планировка, с отделкой.
Бизнес-центр "Дмитровский" в самом центре района деловой активности (БЦ Савеловский сити, БЦ Молодая гвардия, офис IBS), минутная доступность арт-пространств «Флакон» и «Хлебозавод».
Бизнес центр класс «В+»:
- год введения в эксплуатацию - 2007 г.
- общая площадь здания 21 400 кв.м
- подземный 2-уровневый паркинг, наземная парковка
- 6 лифтов Kone грузоподъемностью 1000 кг. каждый (2 эвакуационные лестницы)
- централизованные системы вентиляции, кондиционирования
- полная модернизация систем АПС, СОУЭ во всем здании - 2019 г.
- возможность для размещения дизель-генератора;
- закрытого типа столовая;
- управление и обслуживание здания - профессиональная УК Sawatzky group.























