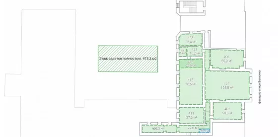
Сдается офис вп, 478 кв.м., 4/4 эт
Обзор№ - 1192
| Арендная плата (Помесячно) | 1 514 616 |
|---|---|
| Цена кв.м. в год | 38 024 |
| Площадь, кв.м. | 478 |
Адрес
| Населенный пункт | Москва |
|---|---|
| Улица | переулок Знаменский Б. |
| Номер дома | 2 |
Офисный блок в особняке, в центре Москвы. Кабинетная планировка. С отделкой. Шаговая доступность от м. Кропоткинская. Наличие наземного паркинга и гостевой парковки. Круглосуточная охрана и видеонаблюдение. Пропускная система.



























