Сдается здание, 6325 кв.м., / эт
| Арендная плата (Долгосрочная) | 36 316 042 |
|---|---|
| Цена кв.м. в год | 68 900 |
| Населенный пункт | Москва |
|---|---|
| Улица | улица Балчуг |
| Номер дома | 3/2 |
Лот 1188
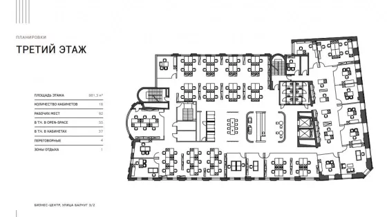
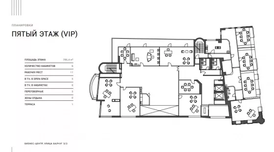
БИЗНЕС-ЦЕНТР ЦЕНТР КЛАССА А, БАЛЧУГ 3/2
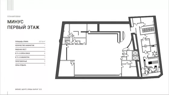
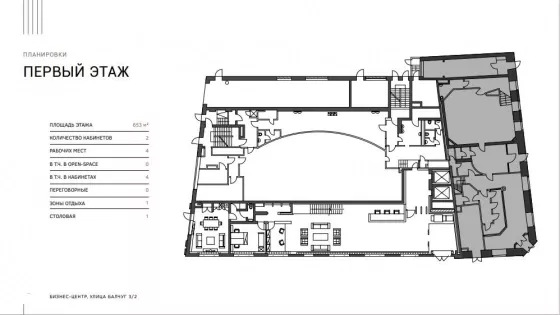
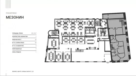
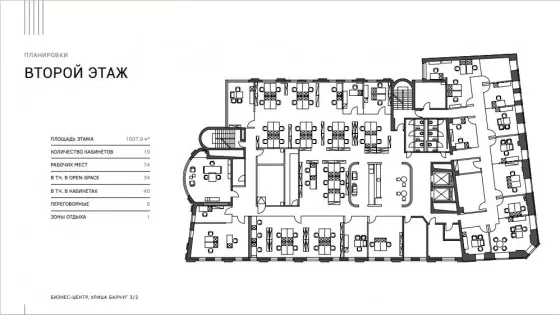
Совершенство и функциональность-ключевые идеи, которые легли в основу концепции бизнес-центра. За классическим фасадом стоят современные инженерные решения, эффективные планировки и качественные материалы. На двух верхних этажах расположены террасы и балконы, где можно организовать зону для переговоров и отдыха, прислушаться к себе и звукам города, созерцая купола монастырей и башни Кремля.
Расположение бизнес-центра очень выгодно даже для исторического центра столицы. Здесь в шаговой доступности представлено все многообразие инфраструктуры. Балчуг-самое сердце Москвы. Вблизи здания нет высоток, преграждающих солнечный свет. Поэтому все помещения имеют хорошее естественное освещение. Существующая планировка послужит оптимальным решением для ваших задач. На этажах бизнес центра гармонично сочетаются кабинеты и пространства open space, переговорные и рекреационные зоны. Здесь все организовано для вашего удобства и эффективного ведения дел.





















