Сдается офис вп, 438 кв.м., 2/4 эт
Обзор№ - 1141
| Арендная плата (Помесячно) | 998 640 |
|---|---|
| Цена кв.м. в год | 27 360 |
| Площадь, кв.м. | 438 |
| Юридический адрес | предоставляется |
| НДС | НДС включен |
| Включено в ставку | Эксплуатационные расходы |
| Парковка | наземная |
| Безопасность | Система контроля доступа |
Адрес
| Населенный пункт | Москва |
|---|---|
| Улица | улица Вятская |
| Номер дома | 27 |
ЛОТ 1141
Один из крупнейших функционирующих бизнес-кварталов расположенный в деловом районе Северного административного округа Москвы.17 строений разной этажности исторической и современной застройки, расположенные на обособленной территории с двумя небольшими скверами
Офисные помещения класса В+ Общая площадь 59 000 м
Современные инженерные системы. Подогрев территории в зимний период Наземная и подземная парковка на 566 м/м
Инфраструктура на территории: фитнес-клуб со скалодромом, корпоративная столовая, кафе, ресторан, винный бар-ресторан, барбершоп, студия красоты, коворкинг, street food restaurants, бутик подарков.
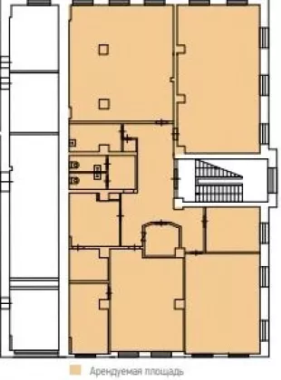
Строение 7, этаж 2 Площадь помещения по БТИ: 369,5 м
Арендуемая площадь помещения: 438 м
Помещение с отделкой. Готово к въезду Срок аренды: от 11 месяцев
Ставка арендной платы: 18 000 р. за м в год (без НДС)
Эксплуатационные расходы: 4 550 р. за м в год (без НДС)
Парковочный коэффициент: 1 м/м на 90 м арендуемой площади
Коммунальные платежи - оплачиваются отдельно НДС оплачивается по ставке действующего законодательства
Бизнес-парк «Фактория» – это:
- Офисные помещения класса B и B+, расположенные в зданиях исторической и современной застройки на обособленной территории с двумя скверами.
- Максимально удобная транспортная доступность.
- Один из лучших миксов арендаторов международных и российских компаний, лидеров в своих отраслях.
- Профессиональный и надежный арендодатель и сторонняя компания по эксплуатации.



















