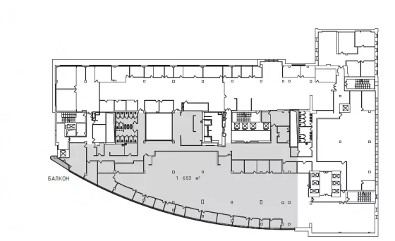
Сдается офис вп, 1653 кв.м., 4/7 эт
Обзор№ - 1130
| Арендная плата (Помесячно) | 9 298 125 |
|---|---|
| Цена кв.м. в год | 67 500 |
| Площадь, кв.м. | 1653 |
| НДС | НДС включен |
| Включено в ставку | Эксплуатационные расходы |
Адрес
| Населенный пункт | Москва |
|---|---|
| Улица | переулок Романов |
| Номер дома | 4 |
Офис в бизнес-центре класса А с выходом на террасу в центре Москвы. Открытая планировка. С отделкой.
Расположение ROMANOV DVOR в самом центре позволяет его резидентам иметь неограниченный доступ ко всей знаковой инфраструктуре Москвы как одной из деловых, финансовых и культурных столиц мира.
Три здания комплекса общей площадью 53 000 кв.м хорошо дополняются объектами инфраструктуры и живописным внутренним двором.
На метро 7 станций в шаговой доступности На автомобиле в непосредственной близости от ROMANOV DVOR проходят важнейшие транспортные артерии города: улицы Моховая, Тверская, Новый Арбат, Воздвиженка, Большая Якиманка, набережные Москвы-реки, Бульварное и Садовое кольцо.









