Сдается офис вп, 927 кв.м., 10/18 эт
Обзор№ - 1034
| Арендная плата (Помесячно) | 2 781 000 |
|---|---|
| Цена кв.м. в год | 36 000 |
| Площадь, кв.м. | 927 |
| НДС | НДС включен |
| Включено в ставку | Эксплуатационные расходы |
| Коммунальные услуги включены | Нет |
| Парковка | платная |
Адрес
| Населенный пункт | Москва |
|---|---|
| Улица | улица Двинцев |
| Номер дома | 12 |
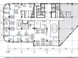
Офис в бизнес-центре класса "А", 10 минут пешком до м. Савеловская. Офис смешанной планировки на 60-120 сотрудников. 9 кабинетов, 3 переговорных, welcome space, кухня, серверная, с/у в блоке. 10000 руб./месяц+НДС за 1 м/м.
БЦ Двинцев - комплекс класса "А". Имеет обширную инфраструктуру, комфортную транспортную доступность. Предлагает своим арендаторам качественную эксплуатацию комплекса, гибкие офисы формата "built-to-suit", эффективные планировочные решения. В 2020 году бизнес-центру был присвоен сертификат мирового экологического стандарта BREEAM.
Готов ко въезду.



























